| Donanım | Özel Tasarım, Şömineli, Spa & Wellness, Ultra Lüks |
|---|---|
| Konut Tipi | Tripleks Villalar |
| Kullanım Amacı | Dağ Evi, Kır Evi, Yazlık |
| Oda Sayısı | 12+ |
| Tarz | Malikane |
| Yapı Malzemesine Göre | Betonarme |
Doğal Doku ve Modern Lüks: SPA Alanlı ve Teraslı Malikane Projesi
Doğanın içinde, modern mimarinin en rafine halini yansıtan bu malikane projesi, doğal taş ve sıcak ahşap dokularının cüretkar bir uyumunu sergiliyor. Eğimli bir araziye ustalıkla yerleştirilen yapı, katlar boyunca uzanan geniş balkonları ve bahçeye açılan devasa terasıyla, iç ve dış mekan yaşamı arasında kusursuz bir geçiş sağlar. Her katı farklı bir amaca hizmet edecek şekilde tasarlanan bu projede, özel SPA ve wellness katından, misafir ağırlamaya yönelik sosyal alanlara kadar her detay, prestijli ve ayrıcalıklı bir yaşam tarzı için kurgulanmıştır.
Proje Özellikleri
| Özellik | Açıklama |
| Proje Kodu | MEF-V2403 |
| Toplam Brüt Alan | ~612 m² |
| Kat Sayısı | 4 (2 Bodrum + Zemin + 1. Kat) |
| Oda Sayısı | 5+2 (5 Yatak Odası + 2 Salon + 1 Çalışma Odası) |
| Banyo / WC | 6+ Adet |
| Özel Alanlar | Hamam, Sauna, Geniş Teras, Çoklu Balkonlar |
| Mimari Stil | Modern & Organik |
Kat Planları ve Mekan Dağılımı
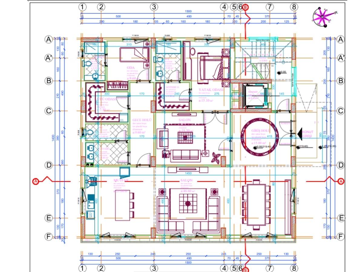
1. Kat Planı (Özel Yaşam Alanları)
Ailenin özel yaşam alanı olarak tasarlanan bu kat, mahremiyet ve konforu bir arada sunar.
-
3 Adet Yatak Odası: Her biri en-suite banyolu, geniş ve aydınlık odalar.
-
Çalışma Odası: Evden çalışma veya kütüphane için ideal, ayrı bir oda.
-
Gece Holü ve Oturma Alanı: Odalar arasında dağılımı sağlayan, küçük bir oturma grubuna sahip ferah bir alan.
-
3 Adet Banyo: Her odaya özel modern banyolar.
Zemin Kat Planı (Ana Giriş ve Yaşam Alanı)
Villanın ana girişinin bulunduğu bu kat, günlük yaşam ve misafir ağırlama fonksiyonlarını birleştirir.
-
Giriş Holü (21.40 m²): Etkileyici ve geniş bir karşılama alanı.
-
Ana Salon (46.00 m²): Geniş ve ferah ana oturma odası.
-
2 Adet Yatak Odası (15.10 m² ve 9.60 m²): Biri en-suite banyolu olmak üzere iki konforlu oda.
-
2 Adet Banyo: Misafir ve genel kullanıma yönelik banyolar.
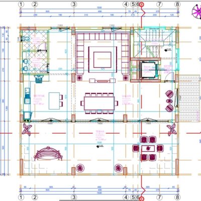
Bodrum Kat 1 (Sosyal Alan ve Teras)
Tamamen misafir ağırlama, eğlence ve sosyal aktiviteler için ayrılmış, doğrudan bahçeye açılan bu kat, projenin kalbidir.
-
Devasa Salon (68.00 m²): Şömineli, büyük oturma gruplarını rahatça ağırlayabilen ana sosyal alan.
-
Mutfak (17.80 m²): Salona hizmet veren tam donanımlı ikinci mutfak.
-
Geniş Teras (72.00 m²): Salonla bütünleşik, dış mekan mobilyaları ve barbekü alanı için mükemmel, devasa bir teras.
Bodrum Kat 2 (SPA ve Wellness Alanı)
Bu kat, ev konforunda beş yıldızlı bir otel deneyimi sunmak üzere tasarlanmış özel bir SPA merkezidir.
-
Dinlenme Alanı / Ortak Alan (91.00 m²): SPA sonrası dinlenmek veya spor aktiviteleri için kullanılabilecek geniş bir alan.
-
Hamam: Geleneksel Türk hamamı keyfi için özel olarak tasarlanmış bölüm.
-
Sauna: Modern ve konforlu sauna.
-
Duş ve Giyinme Alanları: SPA deneyimini tamamlayan fonksiyonel ıslak hacimler.
-
Modüler Su Deposu (8.00 m²): Villanın su altyapısını güvence altına alan teknik oda.




















Değerlendirmeler
Henüz değerlendirme yapılmadı.